VALIOUD
Réhabilitation d'une maison et création d'un atelier d'artiste en zinc
Sainte-Foy-lès-Lyon, France
Maîtrise d’ouvrage : privée
Mission : complète
Surface : 195 m²
Calendrier : livré en décembre 2019
Réhabilitation d'une maison et création d'un atelier d'artiste en zinc
Sainte-Foy-lès-Lyon, France
Maîtrise d’ouvrage : privée
Mission : complète
Surface : 195 m²
Calendrier : livré en décembre 2019
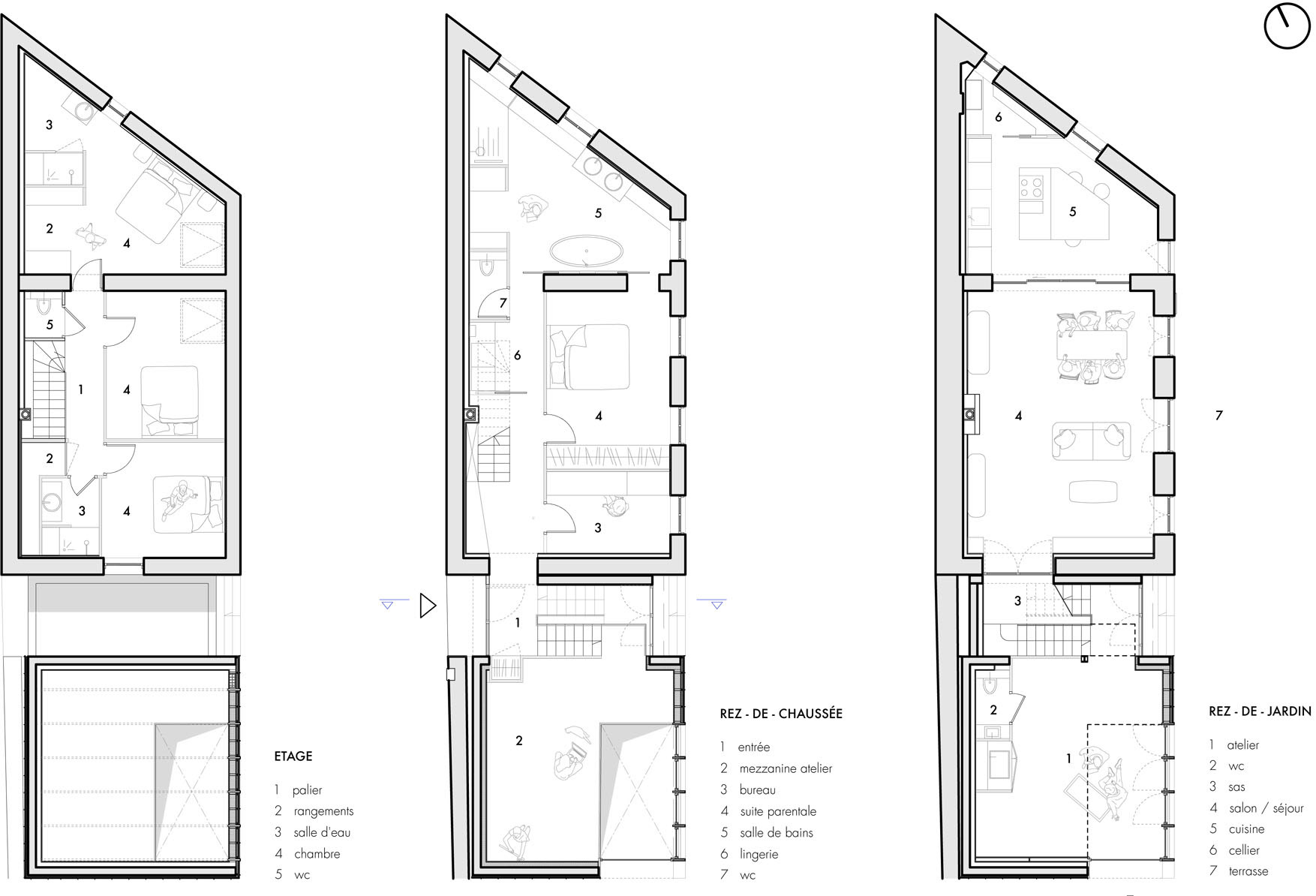
Cette maison adossée à un mur de soutènement, se tourne à l’est, vers un joli jardin boisé à la vue dégagée. Sa situation dans la pente, en plein cœur des balmes, génère une organisation atypique.
Les nouveaux acquéreurs souhaitaient restructurer la bâtisse et créer un atelier d’artiste attenant sans pour autant être déconnecté du reste de la maison. Ce fut l’occasion de repenser entièrement les circulations afin d'articuler ce nouvel espace.
L’extension est implantée en demi-niveau de façon à épouser le terrain naturel et ne pas fragiliser le mur existant. Ce volume simple qui se soumet à la bâtisse existante affirme une écriture contemporaine. Un interstice en creux entre les deux volumes joue le trait d’union en accueillant l’entrée et les circulations verticales.
Les nouveaux acquéreurs souhaitaient restructurer la bâtisse et créer un atelier d’artiste attenant sans pour autant être déconnecté du reste de la maison. Ce fut l’occasion de repenser entièrement les circulations afin d'articuler ce nouvel espace.
L’extension est implantée en demi-niveau de façon à épouser le terrain naturel et ne pas fragiliser le mur existant. Ce volume simple qui se soumet à la bâtisse existante affirme une écriture contemporaine. Un interstice en creux entre les deux volumes joue le trait d’union en accueillant l’entrée et les circulations verticales.
L’atelier se pare d’une vêture en zinc gris vert, en écho à l’environnement boisé. De hautes ouvertures rythmées s’ouvrent sur le jardin et soulignent par leur dessin l’influence des anciens ateliers d’artiste.
Principales entreprises :
étude de sol : P. GROS CONSULTING - BET structure : EQUATIONS - maçonnerie : PETRA PERE ET FILS - charpente, ossature bois et revêtement zinc : C2C - menuiserie extérieure : DMF - façade : FRAISSE ISOLATION - plomberie : SUSNJARA - électricité : EGVB ELEC - plâtrerie peinture : DUPRE - carrelage : ATMOSPHERE CARRELAGE - menuiserie intérieure et parquet : ESPRIT BOIS - verrières et serrurerie : DUPRE - occultations : CALLYBSO - fumiste : TURBO FONTE
étude de sol : P. GROS CONSULTING - BET structure : EQUATIONS - maçonnerie : PETRA PERE ET FILS - charpente, ossature bois et revêtement zinc : C2C - menuiserie extérieure : DMF - façade : FRAISSE ISOLATION - plomberie : SUSNJARA - électricité : EGVB ELEC - plâtrerie peinture : DUPRE - carrelage : ATMOSPHERE CARRELAGE - menuiserie intérieure et parquet : ESPRIT BOIS - verrières et serrurerie : DUPRE - occultations : CALLYBSO - fumiste : TURBO FONTE