CHAVEL
Construction d'une maison neuve
Vaux-en-beaujolais, France
Maîtrise d’ouvrage : privée
Mission : complète
Surface : 180 m²
Calendrier : livré en février 2017
Crédit photos : Mathieu Noël
Construction d'une maison neuve
Vaux-en-beaujolais, France
Maîtrise d’ouvrage : privée
Mission : complète
Surface : 180 m²
Calendrier : livré en février 2017
Crédit photos : Mathieu Noël
Nichée au cœur des vignes beaujolaises, le site offre une vue dégagée sur un vallon et le joli village de Cloche-Merle. La silhouette simple de la maison se dessine dans le paysage en harmonie avec les maisons du hameaux.
Le travail des ouvertures, généreuses, encrent la maison dans une dynamique plus contemporaine.
Le travail des ouvertures, généreuses, encrent la maison dans une dynamique plus contemporaine.
Les menuiseries en mélèze, cernées de pré-cadres, tissent le lien intérieur extérieur, font entrer le paysage dans la maison. De larges châssis cadrent les vues lointaines au nord et à l’ouest.
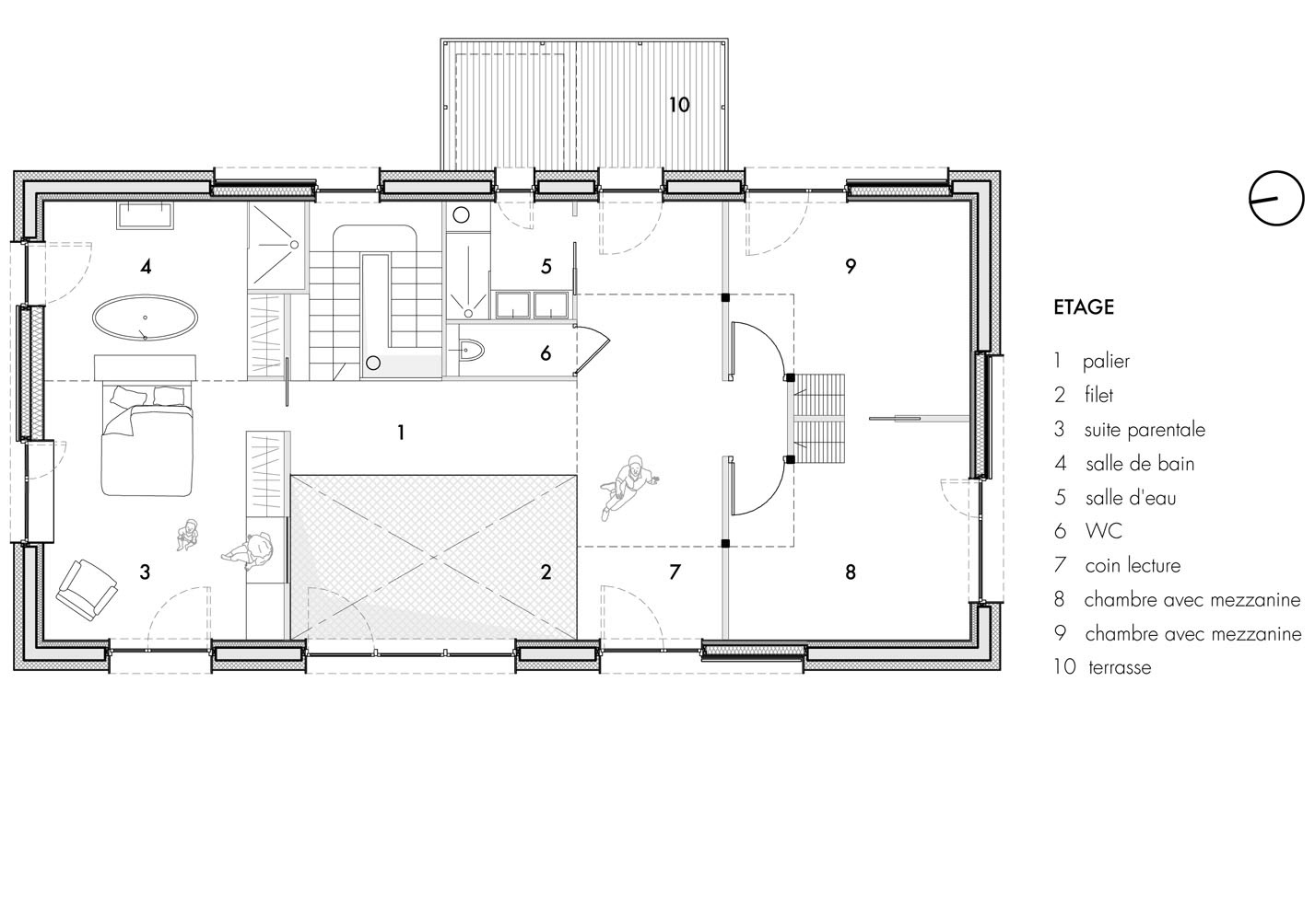
Au cœur de la maison, un escalier aérien articule le foyer et accompagne la double hauteur. Au travers d’un filet ludique et convivial, transparaît la lumière et la vue de la grande baie centrale.
Le bois se décline sous plusieurs formes. En façade, les pré-cadres en bois clair soulignent les ouvertures sur un enduit couleur terre créant une jolie ombre portée. En intérieur, un sol en bois sombre contraste avec les fenêtres et cadres en bois clair dans un ensemble monochrome.
Au cœur de la maison, un escalier aérien articule le foyer et accompagne la double hauteur. Au travers d’un filet ludique et convivial, transparaît la lumière et la vue de la grande baie centrale.
Le bois se décline sous plusieurs formes. En façade, les pré-cadres en bois clair soulignent les ouvertures sur un enduit couleur terre créant une jolie ombre portée. En intérieur, un sol en bois sombre contraste avec les fenêtres et cadres en bois clair dans un ensemble monochrome.


ooo



OOO







000



000
Principales entreprises :
maçonnerie : RUSTIQUE ET TRADITION - charpente et couverture : CHOPIN - isolation extérieure et façade : REPPELIN - menuiserie extérieure : MENUISERIE FERRARO - électricité - JM ELEC - plomberie : CHAUFFEA - plâtrerie peinture : PALTRINIERI - menuiserie intérieure : ESPRIT BOIS - verrières et serrurerie : VARNET FRERES - occultations : CALLYBSO
maçonnerie : RUSTIQUE ET TRADITION - charpente et couverture : CHOPIN - isolation extérieure et façade : REPPELIN - menuiserie extérieure : MENUISERIE FERRARO - électricité - JM ELEC - plomberie : CHAUFFEA - plâtrerie peinture : PALTRINIERI - menuiserie intérieure : ESPRIT BOIS - verrières et serrurerie : VARNET FRERES - occultations : CALLYBSO