BERTONE
Réhabilitation complète d'un rez-de-chaussée Croix-roussien
Lyon, France
Maîtrise d’ouvrage : privée
Mission : complète
Surface : 70 m²
Calendrier : livré en juillet 2016
Crédit photo : Mathieu Noël
Réhabilitation complète d'un rez-de-chaussée Croix-roussien
Lyon, France
Maîtrise d’ouvrage : privée
Mission : complète
Surface : 70 m²
Calendrier : livré en juillet 2016
Crédit photo : Mathieu Noël
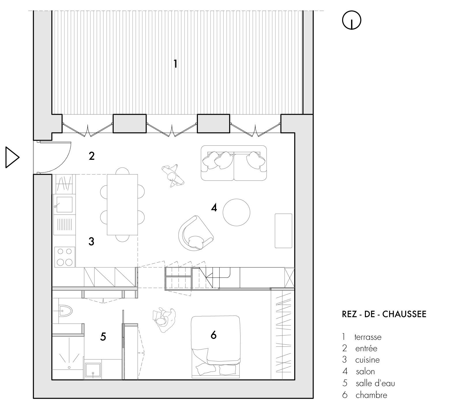
Cet appartement canut en rez-de-chaussée, typique du quartier de la Croix-Rousse, s’ouvre sur une cour intérieure privative. Les nouveaux acquéreurs souhaitaient transformer les lieux en exploitant la belle hauteur sous plafond.
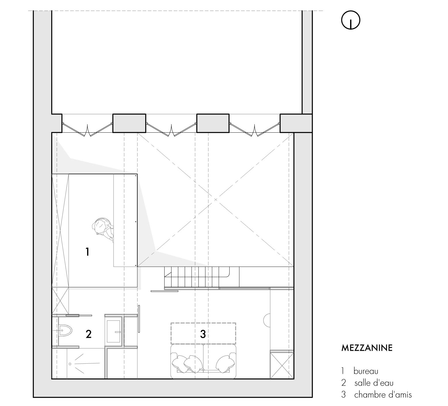
Le projet s'est donc attaché à minimiser toutes les épaisseurs, afin de gagner un maximum de hauteur dans les mezzanines (minimum 180cm). Au rez-de-chaussée, un espace de vie généreux distribue une chambre en second jour. Une mezzanine suspendue vient animer la double hauteur et créer un lieu de travail ludique et fonctionnel. Un deuxième espace modulable peut être fermé grâce à une verrière coulissante et devenir une chambre d'amis.
Un travail en détail des menuiseries intérieures, a permis de sculpter des meubles aux usages combinés (escalier/rangement/banquette, bureau/garde-corps), d'exploiter chaque recoin comme rangement tout en favorisant les doubles hauteurs et points de vue ouverts. Des verrières permettent d'intimiser des espaces tout en maintenant les transparences et apports de lumiere.
Le projet s'est donc attaché à minimiser toutes les épaisseurs, afin de gagner un maximum de hauteur dans les mezzanines (minimum 180cm). Au rez-de-chaussée, un espace de vie généreux distribue une chambre en second jour. Une mezzanine suspendue vient animer la double hauteur et créer un lieu de travail ludique et fonctionnel. Un deuxième espace modulable peut être fermé grâce à une verrière coulissante et devenir une chambre d'amis.
Un travail en détail des menuiseries intérieures, a permis de sculpter des meubles aux usages combinés (escalier/rangement/banquette, bureau/garde-corps), d'exploiter chaque recoin comme rangement tout en favorisant les doubles hauteurs et points de vue ouverts. Des verrières permettent d'intimiser des espaces tout en maintenant les transparences et apports de lumiere.








000
Principales entreprises :
sablage des plafonds : PLANETE SABLAGE - plâtrerie peinture : DUPRE - plomberie : CHAUFFEA - électricité : JM ELEC - sol mortier : CCS DECO - menuiserie intérieure et cuisine : ESPRIT BOIS - verrières et serrurerie : VARNET FRERES - sol mortier : CCS RESINE & DECO
sablage des plafonds : PLANETE SABLAGE - plâtrerie peinture : DUPRE - plomberie : CHAUFFEA - électricité : JM ELEC - sol mortier : CCS DECO - menuiserie intérieure et cuisine : ESPRIT BOIS - verrières et serrurerie : VARNET FRERES - sol mortier : CCS RESINE & DECO